VI HAR AFDELINGER I AALBORG, AABYBRO, NIBE, GJØL, KLARUP, BLOKHUS OG AARS

Nyheder

Ansættelse af ny lærling
-
08/06/18
Fredag d. 8. juni startede Jonas Heidemann Pedersen hos os i lære.

Svendeprøve
-
30/05/18
Tillykke med svendeprøven til vores lærling Kasper Thrysøe Pihl.

Ansættelse af ny lærling
-
24/04/18
Vi har fra 24. april 2018 ansat Johannes Vittrup som lærling på en fuldtidskontrakt.

Svendeprøve
-
11/04/18
Tillykke til vores lærling René Arnum med svendeprøven.

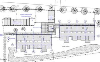
8 nye boliger på Gjøl
-
01/03/18
Etablering af 8 nye boliger på Gjøl.

Serviceelektriker søges
-
24/01/18
Vi søger serviceelektriker til fast og længerevarende arbejde.

Ansættelse af ny serviceelektriker
-
02/01/18
Vi har fra d. 2/1-2018 ansat Jonas Møller-Larsen som ny serviceelektriker.

Årets lærling 2017
-
21/12/17
Årets lærling 2017 blev Jakob Thomsen

Ansættelse af ny serviceelektriker
-
11/12/17
Vi har d. 11/12-17 ansat Henrik Møller Sørensen som serviceelektriker.

Julebelysning i Nibe på plads igen
-
28/11/17
Igen i år har vi tilsluttet al julebelysningen i Nibes gader.